
This is our third article in the How to Build a House series which will discuss the procedures required to waterproof the house's concrete foundation, install the piping used to drain away surface water around the concrete foundation and roof of our house, prepare for pouring and finishing the basement concrete slab and finally backfill the excavation around the concrete. Some areas in our country require different procedures in dealing with this phase of construction. As in the preceding two articles in the How to Build a House series, we have discussed the jurisdiction having authority, the Building Department in your city, town, county or municipality. Get familiar with these people, ask them questions, find out what the different requirements are in your specific area. You cannot just go to the National Building Code and expect to see the requirements in your local area. Our countries, states and even counties are too diversified to have a national code without amendments for local differences. Let's start by discussing how to keep water out of our house and to shed it away from the concrete foundation.
After the poured concrete wall and footing forms are stripped (removed) the snap tie holes should be filled with a cement mortar or an asphalt mastic (roof repair). Don't use lap cement, use a mastic with fiberglass embedded to keep the stuff together. For a concrete block foundation or masonry wall, parge the surface below ground level with not less than ¼ inch (6 mm) of mortar. The first course of concrete block should have the mortar coved over the concrete footings.
Layout the top of the foundation wall, where the grade (level of your landscaping) will come. Allow at least 8" from the top of the wall for the grade. Snap chalk lines at these measurements so you won't go above these lines with the foundation coating, called dampproofing in the building code. The wall is then covered with an asphalt based coating. This coating can be brushed on or sprayed on by a specialist. I recommend a professional being hired. They charge very little for this messy application and usually do a good job. The purpose of this coating is to waterproof the outside foundation wall to keep your house basement or crawlspace dry. This coating will cover the entire concrete wall or parging over masonry below the grade line to the concrete footings, including the intersection of the wall and concrete footings.
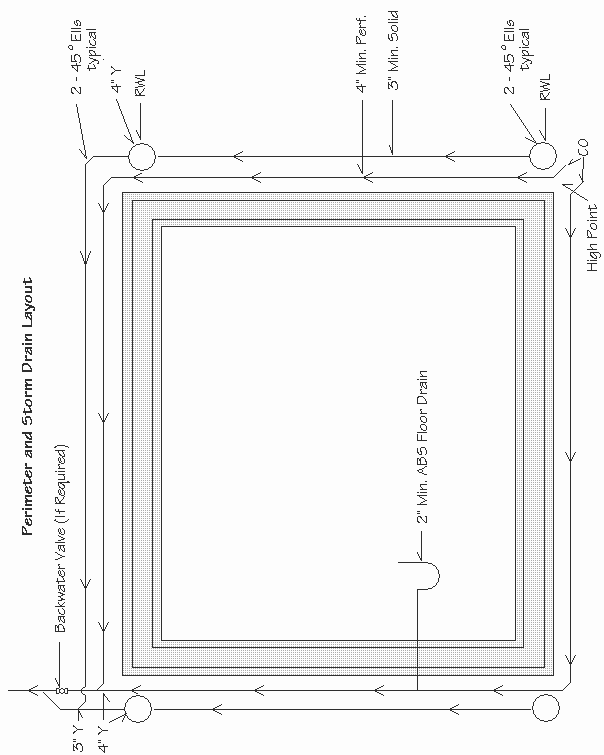
Almost immediately after the dampproofing is applied to the foundation walls, work on the perimeter drains can start. You have two choices in materials to use. Some jurisdictions allow 4" Big O pipe and fittings, others do not, so check with your local jurisdiction having authority first. The other choice is 4" PVC perforated sewer pipe with fittings. Use two 45 degree elbows at the corners rather than one 90 and join a run with a wye and a 45 rather than a tee. Most inspectors require this. In the old days, they ran the rainwater leaders into the perimeter drain. This is no longer done. Now we run a separate solid pipe, usually 3" PVC from the rain gutter downspouts to the solid pipe going to the storm water system which is also connected to the perimeter drain. Run this 3" line above the perimeter drain at a standard slope of ¼" per foot. Run the 4" perimeter drain at a minimum slope of 1" in 40' with the perforations on the bottom.
Think of 3 systems:
If you are in a rural area, number 3 is diverted to either the drainage ditch along the street or to a rock pit or drainage ditch on your property. I've worked in a few different jurisdictions, all of which are in the same province of Canada (similar to a State in the US). Our building code is national in Canada as it is in the US, provinces or states may amend these building codes, and cities or municipalities or counties can amend these building codes even further. One jurisdiction that I worked in did not want the rain gutter drainage to be connected to the storm sewer system. Instead, they required that the rainwater leaders dispense onto a splash block on the lawn or ground which is sloped away from the house. So check the requirements of your local jurisdiction having authority.
Remember to connect the floor drains inside the house directly to the perimeter drains. Also before backfilling the house foundation, connect the 4" sewer drain pipe to the municipal sewer connection or to your septic system. The sewer drain pipe inside the house is ABS pipe and fittings, outside it is 4" solid sewer drain pipe. The ABS must extend outside the house foundation wall to be connected to the PVC there. A PVC bushing is used along with transition cement which will glue PVC and ABS together. The connection at the city property line is usually a flexible mission style fitting.
A tip: When plumbing or framing a house always make the grade stamps on the materials you're using visible to the building inspector.
Here is a drawing of a typical house perimeter and storm drain pipe layout, supplied by your building department:
Now the fun starts, the entire house perimeter piping has to be covered with 6" of drain 1 1/4" rock, which can be ordered from a local gravel pit. Don't get too carried away at this point. You need to inform the building inspector that you are ready for inspection. He wants to see the perimeter pipe and the printing or grade stamps on the drain pipe, so bring the drain rock up to the sides of the drain pipe, but don't cover the drain pipe up until the inspector gives you the go ahead. The idea is to have all the drain rock required in the trench so the inspector can see you intend to cover it later. Have the 3" rainwater pipe hanging above the perimeter drain and sloped the correct way to the municipal storm sewer pipe connection, as well as the 4" connection to the municipal sewer pipe connection. These 2 lines will connect together with 4" solid pipe and then onto the town connection.
After the inspection is passed, cover the rest of the perimeter pipe with drain rock so that it is covered on both sides and top by 6" of drain rock. Then get some newspapers or old roof shingles or landscape fabric and lay them out over the drain rock to keep the backfill dirt from permeating the drain rock. Backfill the excavation. It takes about a year for the backfill to settle so don't just fill the hole up to the existing grade if you are planning on putting in a concrete patio or driveway over this area. Another thing to watch in this first week after pouring the concrete walls is that the walls are not up to final strength yet, so go easy on particularly tall concrete walls. If in doubt, the backfilling can be done later. The best time is after the concrete slab is poured in the basement or the sealcoat in the crawlspace and after the sub-floor is installed.
Notice in the drawing how the sub-floor, the concrete slab and the concrete foundation wall all form a unit to withstand the pressure of the backfill pushing against it.
The 4" concrete slab in a basement and the 2" sealcoat in a crawlspace, both have two very important properties, other than to walk or crawl on. The first is to contain moisture from coming through the concrete slab and the second is to support the concrete wall retaining the backfill at the bottom.
Before pouring a concrete slab for a basement floor we have to prepare the area. Make sure all plumbing and electrical, if any, is installed before putting in your concrete slab. First snap lines on all the concrete perimeter walls and interior walls, if any, at the top of the concrete slab. Ideally, the concrete slab which is 3½ to 4 inches thick should sit on the concrete footings or if they are not level, the highest concrete footing. The important thing is that the bottom of the concrete slab is above the top of the perimeter drain pipe. The ground below the concrete slab must be compacted. You don't want the concrete slab sitting on fill that was not compacted. When the fill settles, which it will, the concrete slab goes down with it, leaving cracks and an unlevel surface. When the bottom of the concrete slab is determined for elevation and the fill is compacted, cover the surface with a 6 mil vapor barrier approved poly. This keeps any moisture below the concrete and out of the room above the concrete slab. The height of the basement ceiling should be figured out carefully before any concrete is poured. The concrete footing depth depends on the depth of frost. The height of the foundation wall depends on the existing grade or desired grade around the foundation. Allow 8" above the finished grade for the top of concrete wall. The ceiling height of the basement depends on the thickness and placement of the concrete slab and the top of the exterior wall. Ideally it should be 96 3/4". In an area with a low frost depth, the pony wall can be wood studs above the foundation wall with the floor joists on top of them. The bottom plate of the pony wall is bolted to the foundation wall with the anchor bolts. In a crawlspace house, the floor joists are nailed on top of a sill plate, bolted to the foundation wall, as in the above drawing.
A tip: both the sill plate and the bottom plate should be either pressure treated or bedded down on top of a sill gasket or both.
When pouring a concrete slab, cement finishers use screeds to level off the surface of the concrete. Screeds can be steel pipes or 2x2s or the concrete itself. If renting a power screed, use the pipes, if not, use the 2x2. Before we get into how to install screeds, let me talk about the process of how to use a screed. The simple way of how to use a screed is to zig-zag a 2x4 across two 2x2s leveling the concrete as you go. It is much easier if a person is on each end of the screed. Try to keep the zig-zags small and go over the same area until the concrete is at the correct level and fairly smooth. The smoother the surface of the concrete is at this stage, the easier the finishing will be later. If making your own screeds use 2x2 material. Cut the screed posts about 12 inches long. Cut a point on one end with either a saw or hatchet. The screeds themselves can be 12' or whatever length of 2x2. You want a post no more than 4' away from another. Layout the position of the screeds, they should be about 8' apart. Bring the screed tight against the end foundation wall and about 1 foot away from the side wall. Just lay the screed down on the compacted sand/gravel exactly where they will eventually be installed. Both walls have a snap line at the correct height of top of concrete. Layout the screed posts against the screed to keep them in a straight line. Pound them into the fill, leaving about 1" sticking up beyond the top of concrete line. Make sure the end of the screed will have a post under it, half on. The post will also share the other half with the next screed. Refer to the 2 drawings:
When the screed posts are all in place, transfer the top of concrete line from the wall with a level to the end post. Tie a snap line to this mark on each end post of a row. Snap the line and cut off the in between posts along this line with a handsaw.
On some jobs, where a very large area is involved. I install the screed posts first and temporarily rest the 2x2 screed on top. I then nail a short 2x2 on top of each end of a 2x4 which almost spans between the screeds. This way we can screed and compact the fill very accurately to save concrete later. After completing the concrete fill, I remove the top screed from its posts and install the vapor barrier, replacing the screed when we are ready for the concrete pour. Some concrete slabs require a 6x6 welded steel mesh as reinforcement which is installed before the screed tops are nailed in place.
I mentioned earlier that we can use concrete itself as a screed. This is called wet screeding. Professionals use this method. I would not recommend it for those without experience using this method before. It takes a bit of practice, but it does save some time. After the snap lines are on the walls, the poly is put down. During the concrete pour, concrete is first laid close to the perimeters and carefully floated along side the wall just at the snap line, leaving in place a wet screed to the correct height. This is also done to the opposite wall and is screed, between the two, with a 2x4 very carefully to keep a good level. This is done in the basement of a house where the distances between opposite walls is not too great. Just watch that the concrete is not dumped up against the wall, washing the snap line off in the process.
I also mentioned the power screed previously. This is a machine that can be rented which is comprised of an engine mounted on two wooden screeds, one ahead of the other behind the engine. The engine vibrates the screeds while it is pulled, rather than zig-zagged back and forth, along the pipe screeds. Best to talk to your rental outlet for proper installation instructions and size of screeds necessary to support their equipment. They may even rent the screeds to go with their machine. The advantage of a power screed is to obtain easily a smoother surface for concrete finishing later, as well as helping to compress or compact the concrete slab, thereby helping to eliminate voids.
As the concrete slab is brought to a nice level with the screeds, remove the 2x2 screeds. They will come up easily, hopefully, bringing the post with them. Don't worry about the odd post being left behind. Throw a shovel or two of concrete over the groove to replace the void left by the 2x2 and its post. Immediately after the concrete slab is screed, set up the bull float and start dragging it across the concrete surface. This helps fill the void from the screed and works any concrete needed to fill it in. The purpose of the bull float is to bring the laitence or cream of the concrete to the top of the surface of the concrete while knocking the rocks down below the surface. It is very easy to operate, lift the front edge of the bull float when going forward and the back edge when dragging the bull float backwards. Don't worry about small ridges caused by the bull float, these will come out with the troweling. Time for a well deserved rest.
The infernal question still remains, when can we get on the concrete slab to finish it? This of course depends on the air temperature and humidity inside or weather conditions outside. It also depends on the type of cement, or additives to the concrete mix. Be patient and keep an eye on the concrete slab. Watch for the surface water leaving the top of the concrete slab, either by absorption or evaporation. Feel the firmness of the concrete slab, will it support your weight? I've seen some finishers get on a large concrete slab early by making up pieces of plywood to walk on. These have handles to help pull them off the slab.
For small concrete slabs you can finish the surface with a hand trowel. Don't get a trowel confused with a bull float. Just as a bull float is used to bring up the laitence, the hand float's purpose is the same. They are made of wood or magnesium. The trowel is made of a tempered sheet steel and is used for polishing or smoothing the laitence, which should be already there from the floating procedure. The steel trowel is swept back and forth across the surface of the concrete in large arcs until the surface is smoothed, filling any small voids in the process.
For larger concrete slabs a power trowel is used. These are designed like a floor polisher, except with steel trowels instead of a pad. They are moved about the concrete slab in the same manner, by lifting or pushing down on the handle to move it. It will come with practice. With a power trowel you can get on the concrete slab a bit later than a hand trowel. One thing not to do is add more water to the surface of the concrete slab if it has dried out too much. This is also against the building code. I've seen cement finishers do this but in only in very small quantities and only if the concrete pour has gotten away from them. Don't let this happen to you. On a big concrete pour make sure you have the people there ready to get on the concrete slab as soon as it is ready to finish. On your first concrete slab, maybe hire a cement finisher to teach you the procedures as he will be responsible for its outcome.
It is not wise to backfill an excavation until at least a week has gone by since pouring the concrete walls. Concrete is designed to get to maximum strength at 28 days. On large industrial concrete pours, engineers or actually students studying engineering, come by the job site on concrete pour day to fill containers for testing. These containers will hold the same concrete that is used in the pour, either footings, walls or slabs. They also check on the slump and a percentage of air in the mix, among other things. They save the concrete cylinders throughout the curing period and place them under pressure at different times. Through the years they have come to the conclusion that concrete always cures and gets harder with time, as does glass. They have determined that after one week, the concrete has usually achieved 50% of its designed compressive strength, with full strength in 28 days. Wait that 7 days to prevent cracking or damaging the "green" concrete. Many house speculators, excavate, form and pour, strip the concrete forms, spray the foundation, install the perimeter drains and rainwater leaders, cover the pipe with drain rock, place and compact sand/gravel for the concrete slab, pour the slab and backfill the foundation before the excavator moves on to its next residence. If a weekend falls after the concrete pour a week has usually gone by when it is time to backfill anyway.
During the excavation the fill is piled up somewhere close to the concrete foundation where it is out of the way. You can always backfill with a bobcat and compact areas under a concrete patio or stairs, as you bring the fill up to grade level. Remember that the grade around the house should be at 8" below the top of the concrete foundation wall and sloped away from the house on all sides. Watch for large rocks rolling down the bank toward the concrete foundation wall and damaging the foundation coating or worse.
This concludes our discussion of the services, slab and backfill. The next article in the How to Build a House series covers installing aluminum or vinyl soffits.
Dave
(Ask Dave) (About Dave)Hi, I'm Dave Osborne. With over 50 years experience as a journeyman carpenter, foreman and contractor in heavy construction I enjoyed working with apprentices and sharing the tricks of the trade that others shared with me. Now I get emails from Members all over the world and we include many of my answers in our Free Monthly Newsletters. Some of my answers include drawings and instructions specific to a project, but may also answer your questions. I use correct construction terminology, so you can confidently inform your building supply dealers or contractors exactly what you need.
ASK DAVE!
Membership gives you full access to our hundreds of how-to articles, woodworking plans, converters, calculators and tables. Our Stair Calculator is one of the most popular on the internet. We have projects you can build for (and with) your kids, furniture for your wife, and sheds and gazebos. If you run into a problem or need advice your Membership includes unlimited email questions to me through our Ask Dave quick response button.
Join us!